Вы здесь

Заслонки воздушные унифицированные АЗД 190.000 

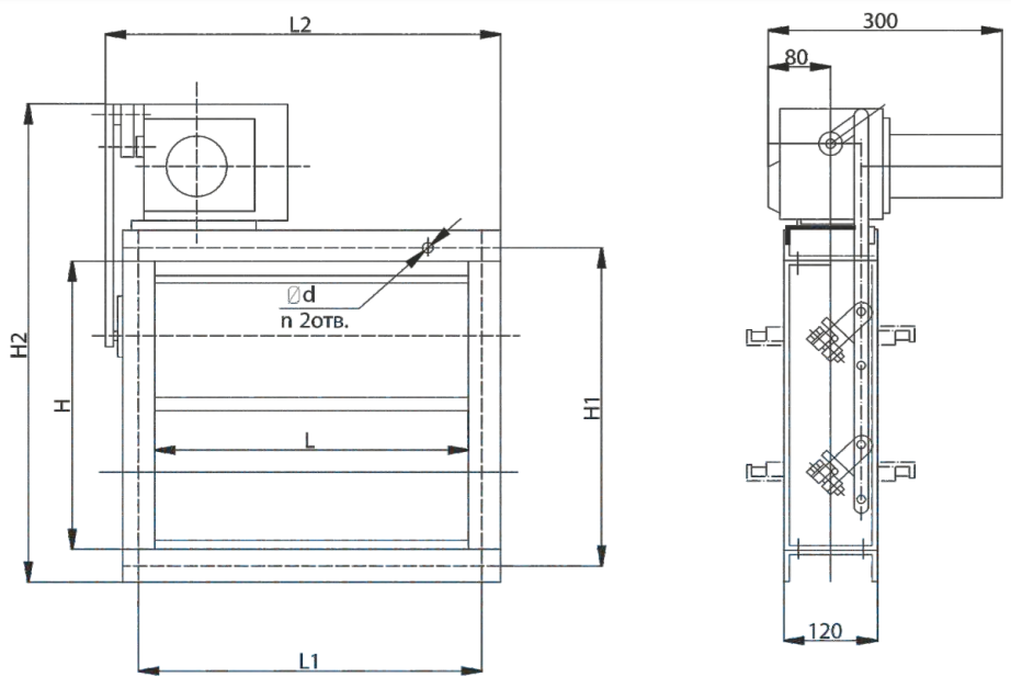
АЗД 190.000 – тип воздушной заслонки прямоугольного сечения с площадкой под электропривод; 400х600 - типоразмер (по прямоугольному присоединительному сечению, HxL, мм.

Заслонки не допускаются для применения в вентсистемах, перемещающих взрывоопасные пыли, парогазовоздушные смеси от технологических установок, в которых взрывоопасные вещества нагреваются выше температуры их самовоспламенения или находятся под избыточным давлением. При установке заслонки ось лопатки должна быть расположена горизонтально.

Заслонка представляет собой корпус из тонколистовой стали с двумя фланцами для присоединения к воздуховодам. Внутри корпуса на осях установлены от одной до трёх лопаток,на которые припомощисистемы тягирычагов,передается движение отпривода, укрепленного на корпусе заслонки.

Габаритные и присоединительные размеры

Заслонки воздушные унифицированные АЗД 190.000

Заслонки воздушные унифицированные АЗД 190.000

Назад к списку