Вы здесь

Заслонки воздушные унифицированные АЗД 130.000 

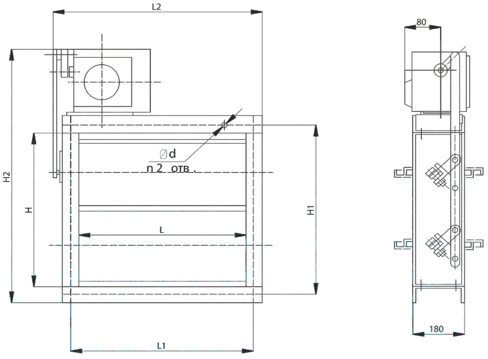
Заслонки воздушные взрывозащищенные АЗД применяются в системах вентиляции, кондиционирования воздуха, воздушного отопления и других санитарно-технических системах с рабочим давлением до 1000 Па (100 кгс/м2). Заслонка АЗД выпускается круглого и прямоугольного сечения и представляет собой патрубок (корпус) из тонколистовой стали, выполненный с поворотными лопатками, установленными на оси. Лопатки снабжены резиновым уплотнением. Поворот и фиксация положения лопаток осуществляется с помощью ручки узла управления или с помощью электропривода «Belimo» помещенного во взрывобезопасную оболочку.

Общая информация

Заслонки воздушные взрывощащищенные предназначены для регулирования количества воздуха и невзрывоопасных газовоздушных смесей, агрессивность которых по отношению к углеродистым сталям обыкновенного качества не выше агрессивности воздуха, с температурой до 80°С, не содержащих пыли и других твердых примесей в количестве не более 100 мг/м3.

Заслонки применяются в системах вентиляции, кондиционирования воздуха, воздушного отопления и других санитарно-технических системах с рабочим давлением до 1000 Па (100 кгс/м2). Заслонки АЗД выпускаются круглого и прямоугольного сечения и представляют собой патрубок (корпус) из тонколистовой стали, выполненный с поворотными лопатками, установленными на оси. Лопатки снабжены резиновым уплотнением. Поворот и фиксация положения лопаток осуществляется с помощью ручки узла управления или с помощью электропривода типа МЭО или «Belimo».

Воздушные заслонки взрвозащищенные АЗД могут работать в режиме «открыто - закрыто», стандартное исполнение и в режиме регулировки воздушного потока, для этого необходима комплектация соответствующим исполнительным механизмом.

Условия эксплуатации

Заслонки АЗД предназначены для эксплуатации в условиях умеренного (У) климата 1, 2, 3, 4 категорий размещения по ГОСТ 15150 -69.

Основные размеры и характеристики

Заслонки воздушные унифицированные АЗД 130.000

Заслонки воздушные унифицированные АЗД 130.000

Назад к списку