Вы здесь
Газовый воздухонагреватель Monzun Euroklim
Газовые воздухонагреватели Monzun Euroklim предназначены для воздухотехнических систем и климатических блоков как отопительные агрегаты для обогрева воздуха, в том числе с приточно-вытяжными установками MANDIK PECIN серии М и P.
Стандартное исполнение предназначено для окружающей среды, которая защищена от метеорологических влияний класса 3K3 в соответствии с EN 60 72133, с диапазоном температур от 0 до +35 °C, для помещений BNV в соответствии с EN 11271 и среды AA4.
Воздух, который проходит через нагреватель, и воздух, который предназначен к сгоранию должен быть избавлен от твёрдых , волокнистых, липких или агрессивных частиц.
Рабочим топливом нагревателей Monzun Euroklim является:
- природный газ– ПГ (G20);
- природный газ– ПГ (G25);
- пропан-бутан – ПБ (G31/G30);
- пропан – П (G31).
Конструкция Monzun Euroklim

- Корпус нагревателя;
- Боковая дверь (камера горелки);
- Боковая дверь (теплообменник);
- Решетка для выхода воздуха;
- Фланец для воздух. трубопровода;
- Отвод продуктов сгорания;
- Подача воздуха на сгорание;
- Присоединение газа;
- Коннектор 7-полюсный (вход. подача);
- Коннектор 6-полюсный (сигналы на выходе);
- Контрольные лампочки.
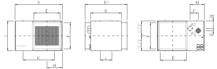
Габаритные размеры Monzun Euroklim

| Tип нагревателя Euroklim | Pазмеры (мм) | |||||||||||||
| A | B | B1 | C | D | E | F | H | K | L | M | N | P | R | |
| 130/180 | 925 | 605 | 850 | 585 | 100 | 500 | 500 | 295,5 | 608 | 250 | 306 | 143 | 160 | 0 |
| 250 | 1005 | 655 | 900 | 635 | 130 | 560 | 560 | 327,5 | 668 | 250 | 306 | 143 | 160 | 0 |
| 300/350 | 1005 | 655 | 900 | 635 | 130 | 560 | 560 | 327,5 | 668 | 250 | 304 | 158 | 173 | 50 |
| 400/450 | 1170 | 735 | 1000 | 716 | 150 | 710 | 560 | 412,5 | 765 | 250 | 308 | 158 | 173 | 50 |
| 520 | 1170 | 735 | 1000 | 716 | 150 | 710 | 560 | 412,5 | 765 | 250 | 292 | 152 | 205 | 65 |
| 600/800 | 1560 | 735 | 1000 | 716 | 150 | 1120 | 630 | 607,5 | 648 | 250 | 292 | 152 | 205 | 65 |
Технические характеристики Monzun Euroklim
| Технические параметры нагревателей Monzun Euroklim | ||||||||||||
| Размер агрегата | 130 | 180 | 250 | 300 | 350 | 400 | 450 | 520 | 600 | 700 | 800 | |
| Ном.потреб.мощность [кВт] | 16,3 | 23,9 | 32,2 | 38,6 | 44,1 | 50,4 | 56,7 | 66,2 | 75,7 | 88,3 | 100,9 | |
| Номин. мощность [кВт] | 15,0 | 22,0 | 28,4 | 34,4 | 40,6 | 46,4 | 52,2 | 60,9 | 69,6 | 81,2 | 92,8 | |
| Потребляемая мощность минимальная | ||||||||||||
| G20 ПГ [кВт] | 7,5 | 12,3 | 15,0 | 15,4 | 20,3 | 22,2 | 25,5 | 31,1 | 33,5 | 43,1 | 49,1 | |
| G25 ПГ [кВт] | 7,8 | 12,1 | 15,0 | 15,3 | 20,3 | 22,2 | 25,5 | 31,1 | 33,5 | 43,1 | 49,1 | |
| G31 П [кВт] | 9,4 | 16,4 | 23,9 | 23,3 | 24,3 | 26,6 | 31,3 | 35,7 | 41,5 | 48,3 | 49,1 | |
| G31/30 ПБ [кВт] | 9,4 | 16,4 | 23,9 | 23,3 | 24,3 | 26,6 | 31,3 | 35,7 | 41,5 | 48,3 | 49,1 | |
| Мощность минимальная | ||||||||||||
| G20 ПГ [кВт] | 6,5 | 10,4 | 12,0 | 12,2 | 15,8 | 19,3 | 21,3 | 26,2 | 28,1 | 35,6 | 40,8 | |
| G25 ПГ [кВт] | 6,7 | 10,3 | 12,0 | 12,1 | 15,8 | 19,3 | 21,3 | 26,2 | 28,1 | 35,6 | 40,8 | |
| G31 П [кВт] | 8,1 | 13,9 | 19,1 | 18,5 | 18,9 | 23,1 | 26,1 | 30,1 | 34,8 | 39,9 | 40,8 | |
| G31/30 ПБ [кВт] | 8,1 | 13,9 | 19,1 | 18,5 | 18,9 | 23,1 | 26,1 | 30,1 | 34,8 | 39,9 | 40,8 | |
| Рабочее давление | ||||||||||||
| G20 ПГ [кПа] | 1,7 2,6 | |||||||||||
| G25 ПГ [кВт] | 2,5 3,0 | |||||||||||
| G31 П [кПа] | 3,0 4,8 | |||||||||||
| G31/30 ПБ [кВт] | 3,0 4,8 | |||||||||||
| Расход газа при номинальной мощности | ||||||||||||
| G20 ПГ | [м3.ч1] | 1,72 | 2,53 | 3,41 | 4,08 | 4,67 | 5,34 | 6,00 | 7,00 | 8,00 | 9,34 | 10,67 |
| G25 ПГ | [кВт] | 2,01 | 2,94 | 3,96 | 4,75 | 5,43 | 6,20 | 6,98 | 8,15 | 9,31 | 10,86 | 12,41 |
| G31 П | [кг.ч1] | 1,27 | 1,86 | 2,50 | 3,00 | 3,43 | 3,92 | 4,41 | 5,14 | 5,88 | 6,86 | 7,84 |
| G31/30 ПБ [кВт] | 1,27 | 1,86 | 2,50 | 3,00 | 3,43 | 3,92 | 4,41 | 5,14 | 5,88 | 6,86 | 7,84 | |
| Расход газа при минимальной мощности | ||||||||||||
| G20 ПГ | [м3.ч1] | 0,84 | 1,30 | 1,59 | 1,62 | 2,22 | 2,35 | 2,70 | 3,29 | 3,55 | 4,56 | 5,19 |
| G25 ПГ | [кВт] | 0,96 | 1,49 | 1,84 | 1,89 | 2,50 | 2,73 | 3,16 | 3,81 | 4,13 | 5,30 | 6,04 |
| G31 П | [кг.ч1] | 0,73 | 1,28 | 1,86 | 1,81 | 1,88 | 2,06 | 2,42 | 2,76 | 3,21 | 3,74 | 3,79 |
| G31/30 ПБ [кВт] | 0,73 | 1,28 | 1,86 | 1,81 | 1,88 | 2,06 | 2,42 | 2,76 | 3,21 | 3,74 | 3,79 | |
| Диаметр форсунки / Количество форсунок | ||||||||||||
| G20 ПГ [мм/] | 3,60/1 | 3,10/2 | 3,60/2 | 3,80/2 | 4,20/2 | 4,40/2 | 4,70/2 | 5,20/2 | 4,70/3 | 5,20/3 | 5,40/3 | |
| G25 ПГ [кВт] | 3,60/1 | 3,10/2 | 3,60/2 | 3,80/2 | 4,20/2 | 4,40/2 | 4,70/2 | 5,20/2 | 4,70/3 | 5,20/3 | 5,40/3 | |
| G31 П [мм/] | 2,40/1 | 1,90/2 | 2,40/2 | 2,40/2 | 2,60/2 | 2,70/2 | 2,90/2 | 3,10/2 | 2,70/3 | 2,90/3 | 3,10/3 | |
| G31/30 ПБ [кВт] | 2,40/1 | 1,90/2 | 2,40/2 | 2,40/2 | 2,60/2 | 2,70/2 | 2,90/2 | 3,10/2 | 2,70/3 | 2,90/3 | 3,10/3 | |
| Давление на форсунку при номинальной мощности | ||||||||||||
| G20 ПГ [кПа] | 1,00 | 0,95 | 1,00 | 1,05 | 0,90 | 1,06 | 0,94 | 0,90 | 0,95 | 0,90 | 0,90 | |
| G25 ПГ [кВт] | 1,42 | 1,38 | 1,42 | 1,46 | 1,28 | 1,45 | 1,35 | 1,28 | 1,36 | 1,30 | 1,29 | |
| G31 П [кПа] | 2,50 | 2,85 | 2,50 | 2,85 | 2,85 | 2,50 | 2,50 | 2,50 | 2,50 | 2,50 | 2,50 | |
| G31/30 ПБ [кВт] | 2,50 | 2,85 | 2,50 | 2,85 | 2,85 | 2,50 | 2,50 | 2,50 | 2,50 | 2,50 | 2,50 | |
| Давление на форсунку при минимальной мощности | ||||||||||||
| G20 ПГ [кПа] | 0,23 | 0,22 | 0,23 | 0,19 | 0,21 | 0,21 | 0,22 | 0,21 | 0,21 | 0,21 | 0,23 | |
| G25 ПГ [кВт] | 0,32 | 0,32 | 0,28 | 0,30 | 0,30 | 0,30 | 0,32 | 0,30 | 0,30 | 0,30 | 0,32 | |
| G31 П [кПа] | 0,96 | 1,45 | 1,35 | 1,00 | 0,83 | 0,77 | 0,85 | 0,77 | 0,88 | 0,90 | 0,70 | |
| G31/30 ПБ [кВт] | 0,96 | 1,45 | 1,35 | 1,00 | 0,83 | 0,77 | 0,85 | 0,77 | 0,88 | 0,90 | 0,70 | |
| Присоединение газа | 1/2´´ | 3/4´´ | ||||||||||
| Размер агрегата | 130 | 180 | 250 | 300 | 350 | 400 | 450 | 520 | 600 | 700 | 800 |
| Расход воздуха при 20°C [м3.ч1] | |||||||||||
| Минимальный | 1200 | 1650 | 2350 | 2850 | 3450 | 3450 | 3900 | 4500 | 5200 | 6000 | 8150 |
| Номинальный | 1300 | 1900 | 2750 | 3000 | 4000 | 4600 | 4600 | 4600 | 7500 | 7500 | 9200 |
| Максимальный | 1750 | 2450 | 3250 | 4100 | 4650 | 5550 | 6250 | 7900 | 9000 | 10100 | 11100 |
| Эл. присоед. [В/Гц] | 230/50 | ||||||||||
| Эл. потреб. мощн. [кВт] | 100 | ||||||||||
| Предохранитель [A] | 2 | ||||||||||
| Покрытие | IP 40 | ||||||||||
| Потеря давления [Па] при расходе воздуха | |||||||||||
| Минимальный | 13 | 25 | 27 | 40 | 60 | 37 | 47 | 62 | 42 | 57 | 102 |
| Номинальный | 16 | 34 | 38 | 45 | 80 | 65 | 65 | 65 | 87 | 87 | 130 |
| Максимальный | 28 | 57 | 53 | 84 | 108 | 95 | 120 | 193 | 126 | 158 | 190 |
| Максимальное повышение температуры воздуха t [°C] при расходе воздуха | |||||||||||
| Минимальный | 37 | 40 | 36 | 35 | 35 | 40 | 40 | 40 | 40 | 40 | 34 |
| Номинальный | 34 | 35 | 31 | 34 | 30 | 30 | 34 | 39 | 28 | 32 | 30 |
| Максимальный | 26 | 27 | 26 | 25 | 26 | 25 | 25 | 23 | 23 | 24 | 25 |



