Вы здесь
Модульные кассетные фильтры FCS-ECO
Модульные кассетные фильтры FCS-ECO предназначены для промышленной фильтрации воздуха, запыленного продуктами обработки материалов и аэрозолями, содержащими вредные вещества.
Также используются для отработанного воздуха из мест проведения сварочных работ, резки и шлифовки и других технологических процессов при образовании сухих, не слипающихся аэрозолей.
Модульные кассетные фильтры FCS-ECO можно подключать непосредственно к технологическому оборудованию или использовать как местную вытяжную вентиляцию с подсоединением следующих улавливающих устройств:
- вытяжные зонты;
- вытяжные столы;
- вытяжные консоли;
- вытяжные панели и т. д.
Устройство, конструкция и принцип работы
Вредные вещества, через улавливающие устройства поступают с потоком воздуха через воздуховод в модульный фильтр. Осевшая на патронных фильтроэлементах пыль стряхивается сжатым воздухом и попадает в пылесборник.
Каждый модуль, имеет защитный экран от прямого механического воздействия на фильтроэлемент грубых частиц. Крупные частицы пыли попадают на экран и рикошетом падают в пылесборник, а мелкие частицы удерживаются на поверхности сменного фильтроэлемента. Очищенный воздух внутри фильтроэлементов поступает вверх в секцию чистого воздуха фильтрационной установки и подается обратно в рабочее помещение либо выводится в атмосферу через вытяжной воздуховод.
Отделенные частицы накапливаются на поверхности фильтрующих элементов, что ведет к медленному повышению перепада давления на этих элементах. Когда перепад давления достигает определенного значения, все фильтроэлементы один за другим очищаются импульсами сжатого воздуха. При этом каждый импульс сжатого воздуха распределяется рассекателем для наиболее эффективного воздействия на фильтрующий элемент. За счет этого накопившиеся частицы стряхиваются и падают в пылесборник под фильтрационной установкой. Фильтрующие элементы очищаются последовательно, один за другим. Очистка фильтрующих элементов осуществляется во время работы установки. Прерывать работу не нужно.
Циклы самоочистки проходят последовательно до снижения перепада давления до рабочего. В случае снижения эффективности встряхивания после длительной эксплуатации фильтровальные элементы требуют замены.
Технические характеристики FCS-ECO
| Модельный ряд установок серии «FCS-ECO» | Артикул | Фильтрующая поверхности, м2 (количество фильтро элементов) | Производительности, м3 | Присоединительный патрубок, мм |
| FCS-ECO-02 | 802 19 01 | 24 (2х12) | 600-2000 | 315 |
| FCS-ECO-04 | 802 19 02 | 48 (4х12) | 1200-4000 | 315 |
| FCS-ECO-06 | 802 19 01 | 72 (6х12 ) | 1800-6000 | 315 |
| FCS-ECO-08H | 802 19 02 | 96 (8х12) | 2400-8000 | 400 |
| FCS-ECO-08L | 802 19 03 | 96 (8х12) | 2400-8000 | 400 |
| FCS-ECO-10H | 802 19 04 | 120 (10х12) | 3000-10000 | 400 |
| FCS-ECO-12 | 802 19 05 | 144 (12х12) | 3600-12000 | 400 |
| FCS-ECO-12H | 802 19 06 | 144 (12х12) | 3600-12000 | 400 |
| FCS-ECO-12L | 802 19 07 | 144 (12х12) | 3600-12000 | 400 |
| FCS-ECO-16 | 802 19 08 | 192 (16х12) | 4800-16000 | 500 |
| FCS-ECO-16H | 802 19 09 | 192 (16х12) | 4800-16000 | 500 |
| FCS-ECO-16L | 802 19 10 | 192 (16х12) | 4800-16000 | 500 |
| FCS-ECO-18 | 802 19 11 | 216 (18х12) | 5400-18000 | 500 |
| FCS-ECO-20 | 802 19 12 | 240 (20х12) | 6000-20000 | 500 |
| FCS-ECO-24H | 802 19 13 | 288 (24х12) | 7200-24000 | 500 |
| FCS-ECO-24L | 802 19 14 | 288 (24х12) | 7200-24000 | 500 |
| FCS-ECO-32H | 802 19 15 | 384 (32х12) | 9600-32000 | 500 |
| FCS-ECO-32L | 802 19 16 | 384 (32х12) | 9600-32000 | 500 |
| FCS-ECO-36 | 802 19 17 | 432 (36х12) | 10800- 36000 | 500 |
| FCS-ECO-40 | 802 19 18 | 480 (40х12) | 12000- 40000 | 500 |
| FCS-ECO-48H | 802 19 19 | 576 (48х12) | 14400- 48000 | 500 |
| FCS-ECO-48L | 802 19 20 | 576 (48х12) | 14400- 48000 | 500 |
| FCS-ECO-56 | 802 19 21 | 672 (56х12) | 16000- 56000 | 500 |
| FCS-ECO-64 | 802 19 22 | 768 (64х12) | 19200- 64000 | 500 |
| Модельный ряд установок серии «FCS-ECO» | Артикул | Массогабаритные параметры | |||
| Габариты, мм (без учета габаритов патрубка) | Масса, кг |
||||
| длина | ширина | высота | |||
| FCS-ECO-02 | 802 19 01 | 900 | 1350 | 1640 | 207 |
| FCS-ECO-04 | 802 19 02 | 900 | 1350 | 2090 | 287 |
| FCS-ECO-06 | 802 19 01 | 900 | 1350 | 2540 | 385 |
| FCS-ECO-08H | 802 19 02 | 900 | 1350 | 2990 | 475 |
| FCS-ECO-08L | 802 19 03 | 1800 | 1350 | 2090 | 535 |
| FCS-ECO-10H | 802 19 04 | 900 | 1350 | 3440 | 557 |
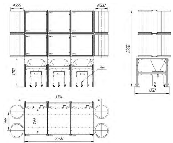
| FCS-ECO-12 | 802 19 05 | 1800 | 1350 | 2540 | 696 |
| FCS-ECO-12H | 802 19 06 | 900 | 1350 | 3890 | 644 |
| FCS-ECO-12L | 802 19 07 | 2700 | 1350 | 2560 | 827 |
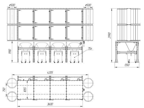
| FCS-ECO-16 | 802 19 08 | 1800 | 1350 | 2990 | 892 |
| FCS-ECO-16H | 802 19 09 | 900 | 1350 | 4790 | 858 |
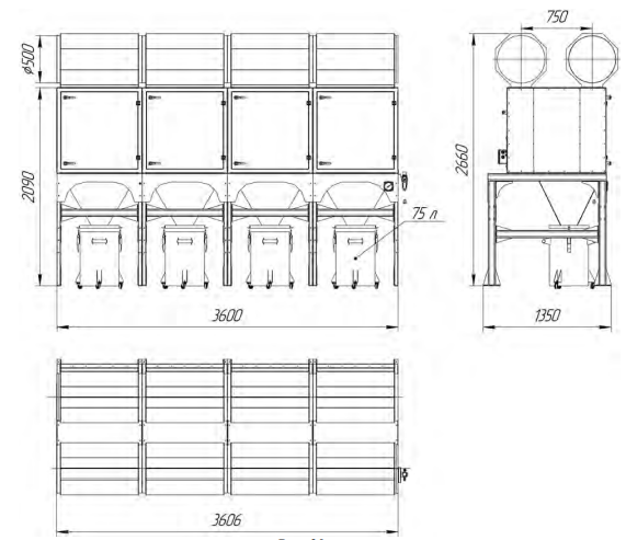
| FCS-ECO-16L | 802 19 10 | 3600 | 1350 | 2660 | 1124 |
| FCS-ECO-18 | 802 19 11 | 2700 | 1350 | 3110 | 1072 |
| FCS-ECO-20 | 802 19 12 | 1800 | 1350 | 3440 | 1026 |
| FCS-ECO-24H | 802 19 13 | 1800 | 1350 | 3890 | 1293 |
| FCS-ECO-24L | 802 19 14 | 2700 | 1350 | 2990 | 1284 |
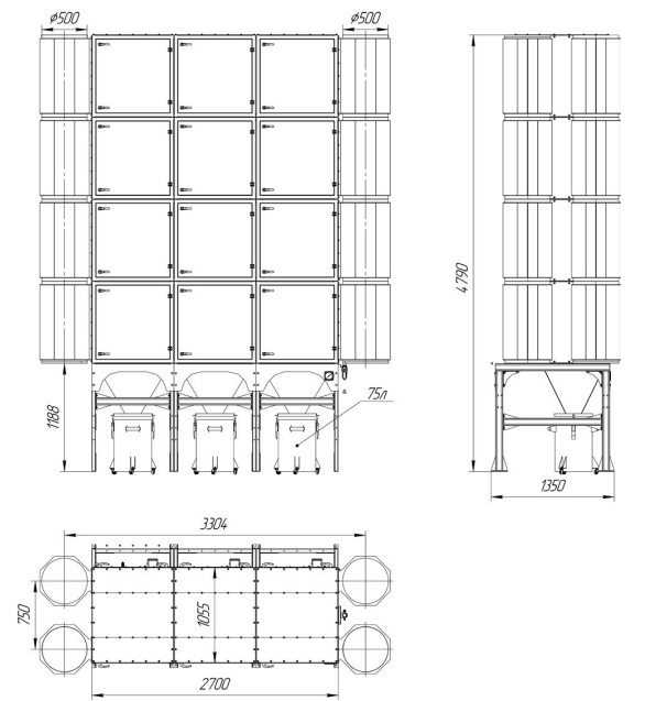
| FCS-ECO-32H | 802 19 15 | 1800 | 1350 | 4790 | 1634 |
| FCS-ECO-32L | 802 19 16 | 3600 | 1350 | 2990 | 1661 |
| FCS-ECO-36 | 802 19 17 | 2700 | 1350 | 3890 | 1945 |
| FCS-ECO-40 | 802 19 18 | 3600 | 1350 | 3440 | 1990 |
| FCS-ECO-48H | 802 19 19 | 2700 | 1350 | 4790 | 2261 |
| FCS-ECO-48L | 802 19 20 | 3600 | 1350 | 3890 | 2278 |
| FCS-ECO-56 | 802 19 21 | 3600 | 1350 | 4340 | 2590 |
| FCS-ECO-64 | 802 19 22 | 3600 | 1350 | 4790 | 2836 |
Габаритные размеры FCS-ECO
FCS-ECO-02

FCS-ECO-04

FCS-ECO-06

FCS-ECO-08H

FCS-ECO-08L

FCS-ECO-10H

FCS-ECO-12

FCS-ECO-12H

FCS-ECO-12L

FCS-ECO-16

FCS-ECO-16H

FCS-ECO-16L

FCS-ECO-18

FCS-ECO-20

FCS-ECO-24H

FCS-ECO-24L

FCS-ECO-32H

FCS-ECO-32L

FCS-ECO-36

FCS-ECO-40

FCS-ECO-48H

FCS-ECO-48L

FCS-ECO-56

FCS-ECO-64




