Вы здесь
Фильтровентиляционные столы сварщика FTW
Фильтровентиляционные столы сварщика предназначены для организации стационарных сварочных постов, рабочих мест пайки, а также выполнения операций резки, зачистки, шлифовки и других технологических процессов, связанных с обработкой металла.
Оборудование обеспечивает эффективное удаление вредных загрязнений непосредственно в зоне их образования и не требует подключения к централизованной вытяжной вентиляции.
Автономность и высокая производительность делают столы типа FTW оптимальным решением для производственных участков, где необходимо обеспечить локальную очистку воздуха и безопасные условия труда.
Преимущества конструкции
Основным отличием фильтровентиляционных столов FTW от стандартных рабочих столов является наличие встроенного фильтровентиляционного агрегата и вытяжного устройства.
Такое конструктивное решение позволяет эффективно улавливать и очищать пыль, сварочный дым и аэрозоли, образующиеся в процессе металлообработки.
Удаление загрязнений непосредственно в рабочей зоне снижает концентрацию вредных веществ в воздухе, повышает уровень промышленной безопасности и улучшает условия труда персонала.
Фильтровентиляционные агрегаты
Столы FTW могут комплектоваться агрегатами двух типов:
- ПАР-МГ — для работы требуется только подключение к электросети с потребляемой мощностью 2,2 кВт;
- ПАР-ПИГ — помимо электропитания, требуется подвод сжатого воздуха для регенерации патронного фильтрующего элемента.
Агрегат ПАР-МГ отличается простотой эксплуатации и подключения. Агрегат ПАР-ПИГ обеспечивает стабильную эффективность очистки при интенсивной нагрузке благодаря автоматической регенерации фильтра сжатым воздухом.
Эффективность и удобство эксплуатации
Использование столов FTW позволяет организовать автономную систему очистки воздуха непосредственно на рабочем месте. Это упрощает размещение сварочных и металлообрабатывающих постов, снижает требования к общей вентиляции цеха и способствует поддержанию нормативных показателей качества воздуха.
Общее устройство
Конструкция стола FTW включает рабочую поверхность для обработки металла, встроенный фильтровентиляционный агрегат типа ПАР-МГ или ПАР-ПИГ, консольно-поворотное вытяжное устройство типа РВУ и блок управления агрегатом. Фронтальные и боковые панели стола выполнены съемными, что обеспечивает удобный доступ к фильтровентиляционному оборудованию для обслуживания.
Фильтровентиляционные агрегаты оснащаются регулируемыми опорами, исключающими передачу вибрации на конструкцию стола. Всасывающий патрубок агрегата соединяется со столом при помощи гибкого воздуховода. Система автоматики оснащена датчиком перепада давления, который сигнализирует о необходимости замены фильтров в агрегате ПАР-МГ или о необходимости регенерации патронного фильтрующего элемента в агрегате ПАР-ПИГ. Регенерация в последнем случае осуществляется автоматически, что обеспечивает стабильные эксплуатационные характеристики оборудования.
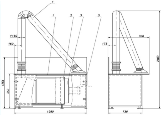
Схема стола сварщика

- ПАР-МГ;
- стол сварочный;
- вентилятор с электродвигателем;
- консольно-поворотное устройство РВУ;
- блок управления.
Схема стола сварщика

- ПАР-ПИГ;
- стол сварочный;
- вентилятор с электродвигателем;
- консольно-поворотные устройства;
- блок управления
Схема стола сварщика

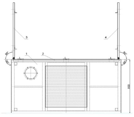
- корпус стола сварщика;
- неподвижная защитная панель;
- подвижная защитная панель (левая);
- подвижная защитная панель (правая).
Схема раскрытия защитных панелей стола сварщика

- корпус стола сварщика;
- неподвижная защитная панель;
- подвижная защитная панель (левая);
- подвижная защитная панель (правая).
Технические характеристики FTW
| Наименование показателя | Значения | |
| с агрегатом ПАР-МГ | с агрегатом ПАР-ПИ | |
| Номинальная производительность, м3 /ч | 1300 | 1300 |
| Эффективность очистки, %, не менее | 99,99 | 99,99 |
| Мощность электродвигателя, кВт | 2,2 | 2,2 |
| Внутренний диаметр входного патрубка, мм | 160 | 160 |
| Габаритные размеры: | ||
| ширина, мм | 740 | 740 |
| длина, мм | 1580 | 1580 |
| высота,мм | 1260 (2400) | 1260 (2400) |



